Product Full Description
Divide container into separate accessible zones with this complete modular wall and door kit. Used to split the container into smaller rooms for bunkies, offices, washrooms, workshops, or storage spaces.
Key Features:
- D.I.Y. Complete Kit: Comes with all parts and required fasteners.
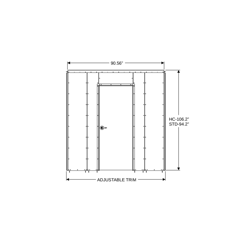
- Easy Installation: Bolt together, then screw in place, giving both sides a flat finished surface. The door can be configured for inward or outward swing. Door location can be moved to the far left or right side.
- Industrial Strength: Galvanized steel designed to be rust-free and fire-resistant.
- Accurate Fit: Separate models for Standard and High Cube containers. Wall panels seal to the sidewall corrugation.
- Innovative Technology: Wall rough-ins are made easier with fitted oval holes for sloping plumbing and 3 rows of holes for fitting electrical wire.
Shipping Options:
- Shipping additional or free pickup.
| Item # | Dimensions of Frame | Dimensions of Door (Available as an Add-On Feature) |
Weight of Kit (without door) |
# of Parts |
|---|---|---|---|---|
| 006-MW1D32 | 90”L x 3.8”W x 93.25” H | 32” x 80” | 294 LBS | 36 + Hardware |










